«Натура»: двухуровневый мобильный дом с инновационными опциями

Несмотря на высокую стоимость крошечные дома становятся все более востребованными, что побуждает производителей разрабатывать оригинальные модели и внедрять разнообразные функции. Британская компания Tiny Housing Co например, представила экологичный, энергоэффективный и по желанию заказчиков самодостаточный мобильный дом Natura, выделяющийся своим внешним видом и неожиданной планировкой (как для такого типа строений).

«Натура»: двухуровневый крошечный дом с оригинальным дизайном и инновационными опциями.
Крошечные дома не являются новой идеей, но они становятся все более популярными даже несмотря на сдерживающие факторы такие, как высокая стоимость, место парковки, буксировка, если решились на покупку парковой модели. Несмотря на это плюсы все-таки перевешивают, ведь мобильные благоустроенные жилища предлагают большую независимость, нежели обычная недвижимость, плюс ко всему в дальнейшем проживание потребует значительно меньших затрат на содержание и техническое обслуживание. Особенно ценно то, что его можно перемещать без особых сложностей и в связи с переездами, и во время длительных путешествий, если проснулся в душе кочевник.

Мобильный дом Natura изготовлен из натуральных экологически чистых материалов.
Стоит отметить, что подобное жилье организовывает жизнь и быт, ведь придется отказаться от лишних вещей и предметов, ежедневно контролировать наличие воды в баках, наполненность емкостей со сточными водами, количество топлива т. д., так что решение сменить квартиру на мобильный крошечный дом потребует решительности и даже мужества. Хотя, если с умом подойти к выбору модели, то больших лишений ждать не придется, даже в том случае, когда домик окажется совсем крошечным, таким как Natura («Натура»), производства британской компании The Tiny Housing Co.

Откидная терраса станет идеальным местом отдыха. | Фото: newatlas.com.
В ее портфолио уже достаточно высококлассных моделей мобильных домов разных размеров и конфигураций, и все они сочетают практичность с эффективностью и даже роскошью. Не стала исключением и последняя разработка, которую эксперты признали одним из самых красивых крошечных домов, вышедших на рынок за последние годы. И главное, он не такой маленький как кажется на первый взгляд, а все потому, что авторы проекта решили поднять потолок практически до 4 метров. Это позволило разделить пространство на два уровня и сделать зоны более просторными.

Максимальная оптимизация пространства позволила вместить массу систем хранения. | Фото: businessinsider.com.
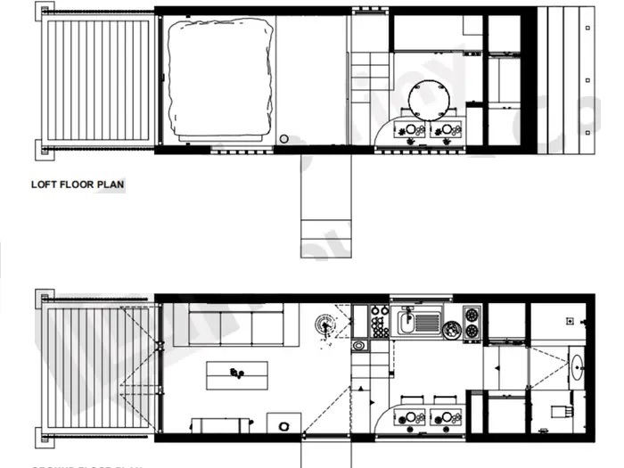
Основные параметры модели Natura: Мобильный дом длиной 7 м, шириной 2,4 м и высотой 3,95 м, установлен на трехосный прицеп. Общая площадь модели, доступной для заказа, составляет 17 кв. м, что не так много по меркам традиционной квартиры, но благодаря оптимизации пространства удалось вместить все необходимое для жизни одного «кочевника». Хотя, если использовать его только для путешествий, то в нем кратковременно может пожить и пара тройка любителей приключений. Помимо жилого пространства предусмотрена еще и откидная платформа, выступающая в роли террасы для отдыха на свежем воздухе.

Поэтажный план крошечного дома Natura. | Фото: autoevolution.com.
Если говорить о дизайне, то необычные формы гармонично дополняет отделочный материал фасада и щедрое остекление. Для облицовки использовались: металл, дерево и пробковые панели, чтобы придать особый шарм, а заодно и повысить энергоэффективность структуры, рассчитанной на круглогодичное проживание в любых климатических условиях. Разработчики предусмотрели довольно толстый теплоизоляционный слой на стенах, полу и крыше, чтобы увеличить коэффициент теплопроводности дома (использовали плиты EPS, XPS и пробковые плиты), приблизив его к стандартам пассивных зданий.
Авторы Novate.ru хотели бы отметить, что на энергоэффективности компания не остановилась. Экологически сознательному подходу к строительству уделили особое внимание. В конструкции мобильного дома использовали несколько инновационных внедрений: солнечные панели, систему фильтрации и рекуперации воды, экономичную систему отопления и экологичные строительные материалы.

В версии Natura Eco Package предусмотрена дровяная печь. | Фото: tinyhousetalk.com.
«Главная наша цель — популяризировать более экологичный образ жизни, используя всевозможные материалы, опции. Мы стараемся предложить что-то новое, инновационное и уникальное», — рассказывает о приоритетах проектирования крошечных домов Дэйн Смит-Берчнелл, являющийся основателем и генеральным директором The Tiny Housing Co. Эта модель предусматривает две комплектации. Стандартная версия Natura поставляется с установленными солнечными панелями мощностью 1 тыс. Вт. А вот Natura Eco Package уже модернизирована, мощность панелей увеличена до 3 тыс. Вт, что позволяет владельцу отключаться от сети на более длительные отрезки времени. Также в этом пакете устанавливается дровяная печь с функцией подогрева пола, чтобы максимально сократить коммунальные расходы.

Светлая и стильная гостиная в крошечном доме. | Фото: autoevolution.com.
Если говорить о планировке жилого пространства миниатюрного дома, то в этом вопросе разработчики руководствовались практичностью и максимальной функциональностью. Дизайнеры же сделали все возможное, чтобы создать стильный и объемный интерьер, отдав предпочтение минимализму, светлым тонам и обилию солнечного света, льющегося из больших окон. Вход осуществляется через боковую дверь, за которой сразу находится гостиная, где установлен диван-трансформер со скрытыми системами хранения, вместительный открытый стеллаж, журнальный столик, телевизор, та самая дровяная печь и еще парочка мест хранения.

Современная кухня порадует владельцев. | Фото: businessinsider.com
Рядом находится полностью оборудованная кухня с энергоэффективной техникой, включая индукционную плиту с 2 конфорками, холодильник с морозильной камерой, электрическую духовку, вытяжку, а также стильный кухонный гарнитур с рабочей поверхностью и множеством систем хранения. Обеденная же зона находится прямо напротив кухни.

Неожиданное размещение душевой и унитаза. | Фото: newatlas.com.

Ванная комната является единственной яркой зоной. | Фото: autoevolution.com.
На столь крошечном пространстве удалось организовать и благоустроенную ванную комнату с душем, туалетом и раковиной с подвесной тумбой. Стоит обратить внимание на то, как дизайнеры решили вопрос размещения всех необходимых предметов и систем хранения в столь ограниченном пространства. Они решили установить душевую и унитаз на подиумы, что встречается очень редко.

Спальня находится на втором уровне. | Фото: businessinsider.com.
В спальню, находящуюся на втором уровне, можно попасть по функциональной лестнице, в ступенях которой спрятаны выдвижные ящики, что поможет поддерживать в доме порядок. Учитывая, что дом имеет скругленную форму крыши, спальное место установлено так, чтобы более низкая часть оказалась у изголовья. Вместо кровати обошлись средней высоты подиумом, предусматривающем скрытые системы хранения (выдвижные ящики), а также ортопедическим матрасом. При входе в спальню высота потолка вполне приемлема, так что передвигаться можно и стоя, а также обустроить домашний офис или дополнительную зону отдыха.
Это не единственный пример крошечного жилища, в котором запросто можно жить, не лишая себя удовольствия выспаться вволю, приготовить вкусную еду или принять душ. Стартап Haus.me, например, разработал универсальный крошечный дом, площадь которого едва дотягивает до 12 кв. м.
А вот познавательное видео нашего канала:
Комментарии 0